扫描查看手机站
当前位置: 首页> 手机软件> 网络工具> CAD看图王手机版
广告检测 · 病毒检测 · 人工检测时间: 2025/07/05 18:03
打开手机页面扫码
每个人都可以快速下载和体验该软件,该软件具有快速查看、DWG绘图、CAD注释和绘图等功能。
《CAD看图王手机版》为手机用户而打造版本,对于有绘图工作的人而言,它可以让手机进行专业的绘图处理,完美在手机系统上进行兼容,运行使用起来相当的方便,你可以编辑和处理,对图纸进行处理,测量结果也可以一键导出到Excel,数据一目了然。你可以看到更多的内容,更清晰。有了这个软件,你可以轻松地完成更多的任务。可以在手机上查看各种CAD文件,处理方式真的相当便利,也可以快速浏览内容以帮助用户工作。该软件兼容各种版本的文件格式。它不仅允许你快速打开CAD文件,还允许你编辑图形。它支持多种CAD绘图格式,还可以通过微信QQ等软件传输图纸,生成最清晰的原始图纸。
1、存储使用:这里浏览打开的图纸会自动存储在系统中,同时登录多个设备都可以看到,使用起来效果真的很棒。
2、账号登录:支持多种社交平台一键式登录账号、微博、微信、支付宝等社交工具。运行使用真的出色感觉不错。
3、格式处理:CAD绘图格式基本都可以支持快速打开,这里有PDF文档、bmp文档、png文档,各种格式完美支持。
4、修改作品:绘图工具可以快速帮助您修改图纸,同步在各大设备上更新文件图纸使用,能够解决手机各种问题。
1、专业图纸:使用方便快捷,可以随时无缝打开各种文件,而且非常清晰,没有延迟,提供专业图纸绘画使用操作体验。
2、绘画尺寸:采用独特的显示方式,准确显示CAD图纸信息和各种尺寸里面,告别混乱,提供专业的图纸绘画功能设置。
3、绘图工具:可随时随地修改图形,提供多种绘图工具,真实的CAD图形绘制和快速修改,使用体验效果体验非常方便。
4、图文信息:快速同步自己的图文信息,并将其存储在云存储空间中,让手机电脑随时同步,数据保证可以体验非常好。
1、在线编辑:支持快速文件共享,微信、QQ等文件传输软件,CAD图形可在线编辑,自定义使用效果打造全面图纸设置。
2、处理工具:这是我们手机版的CAD图片处理工具,相信很多专业的朋友都在用,非常实用,使用体验起来效果很方便。
3、文档体验:可以帮助我们快速上传和处理图纸,将图纸直接拍摄成文档,提高大家的办公效率,图纸制作效果很出色。
4、一致好评:软件得到了CAD用户的一致支持和好评,软件目前支持国内外几乎所有的CAD绘图格式支持你的使用体验。
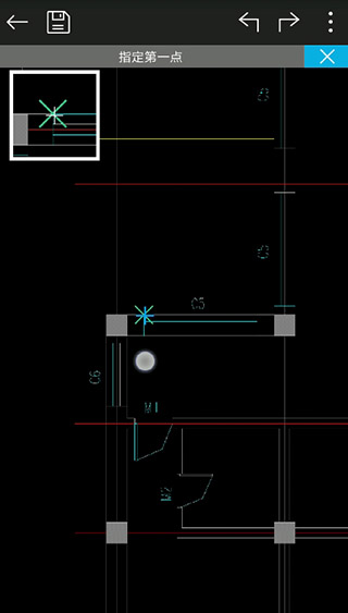
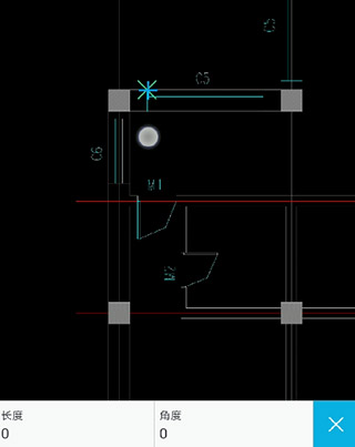
1、打开图纸后,点击CAD看图王软件右上方三个点按钮,点击设置,可以看到命令面板、放大镜等功能设置界面。
2、当开启命令面板,执行绘图操作时,如直线、圆、矩形等功能,会弹出命令面板,可以在命令面板中输入相应的参数,如角度、长度、坐标等。
3、取消这个选项后,将不会弹出命令面板,只有点击对应的数字时才会弹出。这个适用于根据捕捉点绘制的时候,不需要手动控制参数的情况。
4、开启模拟鼠标后,单指长按屏幕捕捉的时候,显示的捕捉点是在手指的上方,而不是手指按压的地方。这样可以防止手指遮挡住捕捉点,方便查看。
5、当测量或者绘图时,单指长按屏幕,在软件左上方会显示一个方框,里面是对手指点击处图纸的放大显示,这个设置就是控制放大镜的位置和大小。
1、在CAD看图王页面,点击”设置”图标。
2、进入到设置页面后,找到“开图模式”,点击它。
3、在下方出现的选项中,点击“看图模式”选项,即可。
1、在CAD图纸界面,点右上角三个点按钮,展开功能菜单,里面有不少实用选项,能助力绘图呢。
2、展开菜单后,找到【设置】选项,点进去就能调整各种绘图相关参数,让绘图更顺手啦。
3、进入设置,找到【捕捉模式】选项,点它可进入捕捉模式设置界面,能精细调整捕捉相关内容哟。
4、在捕捉模式里,有端点、中点等多种捕捉类型,根据绘图需求开启对应类型,绘图会更精准呢。
这是一个很好的CAD软件,目前,全球有超过3500万免费用户,这绝对值得一试,可以在这里进行图纸制作使用体验。
绘图制作使用:7.8
用户推荐指数:8.1
本站推荐分数:7.9
v5.15.6版本
1、修复已知问题。
973游戏网为您带来CAD看图王手机版手机软件,觉得好玩的朋友可以记住我们,973为您提供好玩的手游和好用的手机软件下载。如果您觉得这款软件还不错,可以分享给您的朋友:https://www.973.com/app/811272.html
相关合集
软件教程
软件资讯
网络杂谈
查看权限
此应用程序需要访问以下内容
允许应用程序写入SD卡。
允许程序读取外部存储,如SD卡上读文件。
允许应用程序查看所有网络的状态。
允许应用程序查看有关 WLAN 状态的信息。
允许应用程序连接到 WLAN 接入点以及与 WLAN 接入点断开连接,并对配置的 WLAN 网络进行更改。
允许程序访问网络.
允许应用程序访问录音路径。
允许应用程序修改整个系统的音频设置,如音量和路由。
允许应用程序控制振动器。
允许应用程序防止手机进入休眠状态。
允许应用程序检索有关当前和最近运行的任务的信息。恶意应用程序可借此发现有关其他应用程序的保密信息。
该权限允许应用程序安装其他应用程序。
允许应用程序使用相机拍照,这样应用程序可随时收集进入相机镜头的图像。
允许应用程序读取您手机上存储的所有联系人(地址)数据。恶意应用程序可借此将您的数据发送给其他人。
允许应用程序更改网络连接的状态。
允许应用程序从系统的各日志文件中读取信息。这样应用程序可以发现您的手机使用情况,但这些信息不应包含任何个人信息或保密信息。
允许应用程序将任务移至前端和后台。恶意应用程序可借此强行进入前端,而不受您的控制。
用于公开课使用广告服务的场景。
允许应用程序控制闪光灯。
允许应用程序查看本地蓝牙手机的配置,以及建立或接受与配对设备的连接。
BIM看图王
solidworks
免费CAD快速看图王
青木图片编辑器
图片边框宝
图片裁剪助手
图片压缩助手
图片处理工具
相框图片编辑
云川图片修复
魔趣图片编辑
图片修改宝
大小:2.65MB
时间:2025-12-25
大小:238.89MB
大小:21.27MB
大小:131.87MB
大小:11.72MB
大小:59.33MB
大小:46.80MB
大小:78.70MB
大小:
时间:2025-08-27
时间:2025-08-29
时间:2025-08-28
时间:2025-05-24
时间:2025-08-11
时间:2025-07-19
时间:2025-09-04
时间:2025-12-02
CopyRight©2007-2021 WWW.973.COM All Right Reserved 晋ICP备2023022329号-1
温馨提示:抵制不良游戏 拒绝盗版游戏 注意自我保护 谨防受骗上当 适度游戏益脑 沉迷游戏伤身 合理安排时间 享受健康生活 游戏作品版权归原作者享有,如无意之中侵犯了您的版权,请您来信告知( 联系邮箱:[email protected]),本网站将应您的要求删除。
当前位置: 首页> 手机软件> 网络工具> CAD看图王手机版
CAD看图王手机版
广告检测 · 病毒检测 · 人工检测时间: 2025/07/05 18:03
打开手机页面扫码
每个人都可以快速下载和体验该软件,该软件具有快速查看、DWG绘图、CAD注释和绘图等功能。
《CAD看图王手机版》为手机用户而打造版本,对于有绘图工作的人而言,它可以让手机进行专业的绘图处理,完美在手机系统上进行兼容,运行使用起来相当的方便,你可以编辑和处理,对图纸进行处理,测量结果也可以一键导出到Excel,数据一目了然。你可以看到更多的内容,更清晰。有了这个软件,你可以轻松地完成更多的任务。可以在手机上查看各种CAD文件,处理方式真的相当便利,也可以快速浏览内容以帮助用户工作。该软件兼容各种版本的文件格式。它不仅允许你快速打开CAD文件,还允许你编辑图形。它支持多种CAD绘图格式,还可以通过微信QQ等软件传输图纸,生成最清晰的原始图纸。
软件体验
1、存储使用:这里浏览打开的图纸会自动存储在系统中,同时登录多个设备都可以看到,使用起来效果真的很棒。
2、账号登录:支持多种社交平台一键式登录账号、微博、微信、支付宝等社交工具。运行使用真的出色感觉不错。
3、格式处理:CAD绘图格式基本都可以支持快速打开,这里有PDF文档、bmp文档、png文档,各种格式完美支持。
4、修改作品:绘图工具可以快速帮助您修改图纸,同步在各大设备上更新文件图纸使用,能够解决手机各种问题。
软件特色
1、专业图纸:使用方便快捷,可以随时无缝打开各种文件,而且非常清晰,没有延迟,提供专业图纸绘画使用操作体验。
2、绘画尺寸:采用独特的显示方式,准确显示CAD图纸信息和各种尺寸里面,告别混乱,提供专业的图纸绘画功能设置。
3、绘图工具:可随时随地修改图形,提供多种绘图工具,真实的CAD图形绘制和快速修改,使用体验效果体验非常方便。
4、图文信息:快速同步自己的图文信息,并将其存储在云存储空间中,让手机电脑随时同步,数据保证可以体验非常好。
软件功能
1、在线编辑:支持快速文件共享,微信、QQ等文件传输软件,CAD图形可在线编辑,自定义使用效果打造全面图纸设置。
2、处理工具:这是我们手机版的CAD图片处理工具,相信很多专业的朋友都在用,非常实用,使用体验起来效果很方便。
3、文档体验:可以帮助我们快速上传和处理图纸,将图纸直接拍摄成文档,提高大家的办公效率,图纸制作效果很出色。
4、一致好评:软件得到了CAD用户的一致支持和好评,软件目前支持国内外几乎所有的CAD绘图格式支持你的使用体验。
CAD看图王使用教程
1、打开图纸后,点击CAD看图王软件右上方三个点按钮,点击设置,可以看到命令面板、放大镜等功能设置界面。
2、当开启命令面板,执行绘图操作时,如直线、圆、矩形等功能,会弹出命令面板,可以在命令面板中输入相应的参数,如角度、长度、坐标等。
3、取消这个选项后,将不会弹出命令面板,只有点击对应的数字时才会弹出。这个适用于根据捕捉点绘制的时候,不需要手动控制参数的情况。
4、开启模拟鼠标后,单指长按屏幕捕捉的时候,显示的捕捉点是在手指的上方,而不是手指按压的地方。这样可以防止手指遮挡住捕捉点,方便查看。
5、当测量或者绘图时,单指长按屏幕,在软件左上方会显示一个方框,里面是对手指点击处图纸的放大显示,这个设置就是控制放大镜的位置和大小。
CAD看图王打开看图模式方法介绍
1、在CAD看图王页面,点击”设置”图标。
2、进入到设置页面后,找到“开图模式”,点击它。
3、在下方出现的选项中,点击“看图模式”选项,即可。
CAD看图王怎么设置捕捉模式图标
1、在CAD图纸界面,点右上角三个点按钮,展开功能菜单,里面有不少实用选项,能助力绘图呢。
2、展开菜单后,找到【设置】选项,点进去就能调整各种绘图相关参数,让绘图更顺手啦。
3、进入设置,找到【捕捉模式】选项,点它可进入捕捉模式设置界面,能精细调整捕捉相关内容哟。
4、在捕捉模式里,有端点、中点等多种捕捉类型,根据绘图需求开启对应类型,绘图会更精准呢。
软件评测
这是一个很好的CAD软件,目前,全球有超过3500万免费用户,这绝对值得一试,可以在这里进行图纸制作使用体验。
绘图制作使用:7.8
用户推荐指数:8.1
本站推荐分数:7.9
更新日志
v5.15.6版本
1、修复已知问题。
973游戏网为您带来CAD看图王手机版手机软件,觉得好玩的朋友可以记住我们,973为您提供好玩的手游和好用的手机软件下载。如果您觉得这款软件还不错,可以分享给您的朋友:https://www.973.com/app/811272.html
相关合集
软件教程
软件资讯
网络杂谈
查看权限
此应用程序需要访问以下内容
修改/删除SD卡中的内容允许应用程序写入SD卡。
读取外部存储允许程序读取外部存储,如SD卡上读文件。
查看网络状态允许应用程序查看所有网络的状态。
查看 WLAN 状态允许应用程序查看有关 WLAN 状态的信息。
更改 WLAN 状态允许应用程序连接到 WLAN 接入点以及与 WLAN 接入点断开连接,并对配置的 WLAN 网络进行更改。
访问网络允许程序访问网络.
录音允许应用程序访问录音路径。
更改您的音频设置允许应用程序修改整个系统的音频设置,如音量和路由。
控制振动器允许应用程序控制振动器。
防止手机休眠允许应用程序防止手机进入休眠状态。
检索当前运行的应用程序允许应用程序检索有关当前和最近运行的任务的信息。恶意应用程序可借此发现有关其他应用程序的保密信息。
申请安装应用权限该权限允许应用程序安装其他应用程序。
拍照允许应用程序使用相机拍照,这样应用程序可随时收集进入相机镜头的图像。
读取联系人数据允许应用程序读取您手机上存储的所有联系人(地址)数据。恶意应用程序可借此将您的数据发送给其他人。
更改网络连接性允许应用程序更改网络连接的状态。
读取系统日志文件允许应用程序从系统的各日志文件中读取信息。这样应用程序可以发现您的手机使用情况,但这些信息不应包含任何个人信息或保密信息。
对正在运行的应用程序重新排序允许应用程序将任务移至前端和后台。恶意应用程序可借此强行进入前端,而不受您的控制。
获取厂商oaid相关权限用于公开课使用广告服务的场景。
控制闪光灯允许应用程序控制闪光灯。
创建蓝牙连接允许应用程序查看本地蓝牙手机的配置,以及建立或接受与配对设备的连接。
BIM看图王
solidworks
免费CAD快速看图王
青木图片编辑器
图片边框宝
图片裁剪助手
图片压缩助手
图片处理工具
相框图片编辑
云川图片修复
魔趣图片编辑
图片修改宝
大小:2.65MB
时间:2025-12-25
大小:238.89MB
时间:2025-12-25
大小:21.27MB
时间:2025-12-25
大小:131.87MB
时间:2025-12-25
大小:11.72MB
时间:2025-12-25
大小:59.33MB
时间:2025-12-25
大小:46.80MB
时间:2025-12-25
大小:78.70MB
时间:2025-12-25
大小:
时间:2025-08-27
大小:
时间:2025-08-29
大小:
时间:2025-08-28
大小:
时间:2025-05-24
大小:
时间:2025-08-11
大小:
时间:2025-07-19
大小:
时间:2025-09-04
大小:
时间:2025-12-02